Department for Education (DFE), corp creator.
(2026)
A new model design for a special school.
Preview |
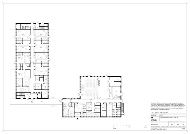
Text
SEN-DFE-XX-00-D-X-0201-Special_School_Plan_Level_00-A-C01.pdf Volume/Part: Special School Plan Level 00 - Published Version Available under License Open Government Licence. Download (164kB) | Preview |
Preview |
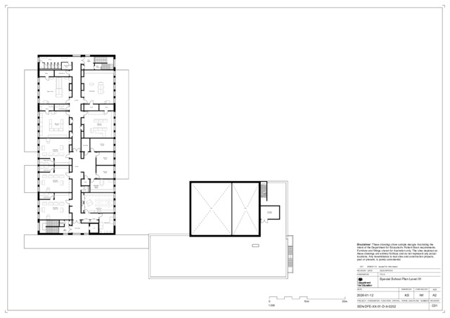
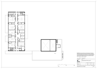
Text
SEN-DFE-XX-01-D-X-0202-Special_School_Plan_Level_01-A-C01.pdf Volume/Part: Special School Plan Level 01 - Published Version Available under License Open Government Licence. Download (124kB) | Preview |
Preview |
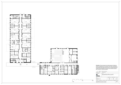
Text
Special_school_landscape_masterplan.pdf Volume/Part: Special School Landscape Masterplan - Published Version Available under License Open Government Licence. Download (836kB) | Preview |
| Item Type: | Document from Web |
|---|---|
| Publisher: | Department for Education |
| Series Name: | Guidance |
| Additional Information: | Applies to England. |
| Depositing User: | New Material1 |
| Date Deposited: | 12 Mar 2026 20:00 |
| Last Modified: | 12 Mar 2026 20:00 |
| URI: | https://dera.ioe.ac.uk/id/eprint/41893 |
![]() |
View Item |
Tools
Tools