Department of Education (DFE), corp creator.
(2026)
A new model design for a secondary school.
Preview |
Text
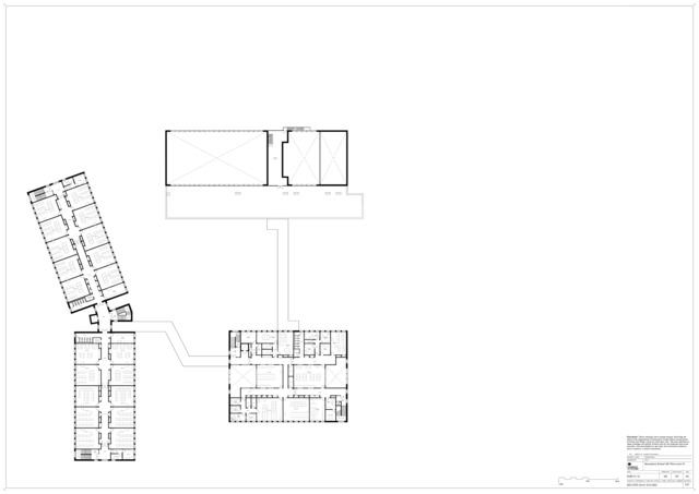
SEC-DFE-XX-00-D-X-0201-Secondary_School_GA_Plan_Level_00-A-C01.pdf Volume/Part: Secondary school plan : Level 00 - Published Version Available under License Open Government Licence. Download (500kB) | Preview |
Preview |
Text
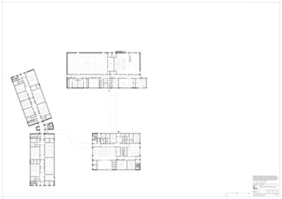
SEC-DFE-XX-01-D-X-0202-Secondary_School_GA_Plan_Level_01-A-C01.pdf Volume/Part: Secondary school plan : Level 01 - Published Version Available under License Open Government Licence. Download (505kB) | Preview |
Preview |
Text
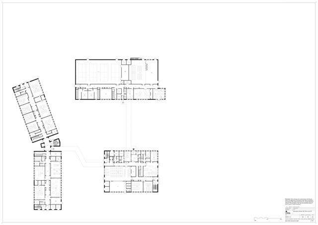
SEC-DFE-XX-02-D-X-0203-Secondary_School_GA_Plan_Level_02-A-C01.pdf Volume/Part: Secondary school plan : Level 02 - Published Version Available under License Open Government Licence. Download (397kB) | Preview |
Preview |
Text
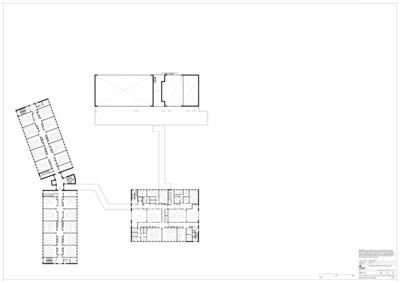
Secondary_school_landscape_master_plan.pdf Volume/Part: Secondary school landscape master plan - Published Version Available under License Open Government Licence. Download (1MB) | Preview |
| Item Type: | Document from Web |
|---|---|
| Publisher: | Department for Education |
| Series Name: | Guidance |
| Additional Information: | Demonstrating the application of the Department for Education's employer's requirements for a 6 form entry secondary school with a 225-place sixth form. - Applies to England. |
| Depositing User: | New Material1 |
| Date Deposited: | 17 Mar 2026 10:28 |
| Last Modified: | 17 Mar 2026 10:34 |
| URI: | https://dera.ioe.ac.uk/id/eprint/41900 |
![]() |
View Item |
Tools
Tools