Department for Education (DFE), corp creator.
(2026)
A new model design for a primary school.
Preview |
Text
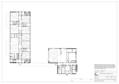
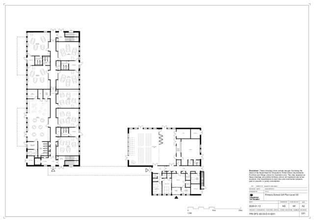
PRI-DFE-XX-00-D-X-0201-Primary_School_GA_Plan_Level_00-A-C01.pdf Volume/Part: Primary school plan : Level 00 - Published Version Available under License Open Government Licence. Download (237kB) | Preview |
Preview |
Text
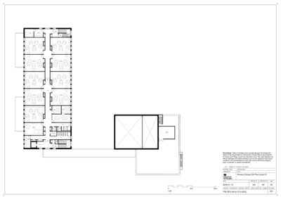
PRI-DFE-XX-01-D-X-0202-Primary_School_GA_Plan_Level_01-A-C01.pdf Volume/Part: Primary school plan : Level 01 - Published Version Available under License Open Government Licence. Download (203kB) | Preview |
Preview |
Text
Primary_school_landscape_master_plan_A.pdf Volume/Part: Primary school landscape master plan - Published Version Available under License Open Government Licence. Download (1MB) | Preview |
| Item Type: | Document from Web |
|---|---|
| Publisher: | Department for Education |
| Series Name: | Guidance |
| Additional Information: | Demonstrating the application of the Department for Education’s employer's requirements for a 2 form entry primary school with a 52-place nursery. - Applies to England. |
| Depositing User: | New Material1 |
| Date Deposited: | 17 Mar 2026 10:33 |
| Last Modified: | 17 Mar 2026 10:33 |
| URI: | https://dera.ioe.ac.uk/id/eprint/41901 |
![]() |
View Item |
Tools
Tools